Lagepläne und

Längsschnitte der D-Linie

Lagepläne D-Linie

Verlauf Linie 10
Ahlem–Hbf. (Marienstr.–Expo/Ost)
Tunnelstationen (gepl.)
7
Tunnellänge (City)
3,15 km

Die D-Linie ist der letzte Baustein im Stadt­bahn­netz. Der vierte geplante Tunnel in der Innen- und Südstadt verläuft zwischen den Rampen in der Goethe­­straße bis zur Linde­­mann­­allee und stellt den Brücken­schlag zwischen den heutigen Linien 10 im Westen und 6 im Süd­osten dar. Die Leit­farbe dieses Astes ist grün. Die hier gezeigten Pläne stellen die Baustufen 1 (Goethe­platz bis Hbf.) und 2 (Hbf. bis Marien­str.) dar. Ergänzend finden Sie dazu den Erläuterungsbericht von 1992. Pläne der Baustufe 3 (Marien­str. bis Linde­mann­allee) stammen aus dem Zeitraum 1992 bis 1994 und sind bis zu Vorabzügen vorhanden.

Haftungsausschluss zur Rubrik Downloads

Verfügbare Pläne D-Linie

Plannummer Art Inhalt (DR= Druck, LP=Lichtpause) Datum (veröff./letztes) Scan
D 2b Querschnitt Querschnitt Unterfahrung Kaufhaus Hertie (LP) 07.05.1992 Download
D 205/113 Lageplan Marienstraße (DR) 21.02.1992 Download
D 205/203 Längsschnitt Marienstraße (DR) 21.02.1992 Download
D 206/129 Lageplan Königstraße (DR) 19.02.1982 Download
D 206/215 Längsschnitt Königstraße (DR) 19.02.1982 Download
D 207/121 Lageplan Ostkopf Station Hauptbahnhof (LP), zu D2b 27.03.1974 Download
D 207/201 Längsschnitt Ostkopf Station Hauptbahnhof (LP) 27.03.1974 Download
D 207/134 Lageplan Hauptbahnhof (komplett, –2-Ebene) (DR) 21.02.1992 Download
D 207/135a Lageplan Hauptbahnhof Passerelle (DR) 15.04.1992 Download
D 207/136 Lageplan Hauptbahnhof (D, –3-Ebene) (DR) 21.02.1992 Download
D 207/206 Längsschnitt Hauptbahnhof (DR) 21.02.1992 Download
D 207a/107 Lageplan Steintor und Hbf.-Unterfahrung (DR) 19.02.1992 Download
D 207a/203 Längsschnitt Steintor und Hbf.-Unterfahrung (DR) 19.02.1992 Download
D 208/124 Lageplan Goetheplatz und Rampe Goethestr. (DR) 12.02.1992 Download
D 208/214 Längsschnitt Goetheplatz und Rampe Goethestr. (DR) 12.02.1992 Download
Legende Lagepläne und Längsschnitte Zeichenerklärung   Download
Übersichtsplan Lageplan Geplantes Stadtbahnnetz Hannover (Planungsstand 1992) 1992 Download
Bericht Erläuterungs­bericht (Vorentwurf) Fotokopie 26.05.1992 Download
Querschnitt Unterfahrung Kaufhaus Hertie, D 2b
Querschnitt Unterfahrung Kaufhaus Hertie, D 2b

Querschnitt Unterfahrung Kaufhaus Hertie

Entwurfszeichnung für die Unterfahrung im Bereich des Gebäudes Raschplatz 6 (ehemals Kaufhaus Hertie, heute Cinemaxx), Zeichnungs­nummer D 2b vom 07.05.1992. Maßstab 1:200. Blattgröße 81 × 29 cm.
U-Bahn-Bauamt der Landeshauptstadt Hannover, Techn. Abteilung 691, 1992.


Lageplan Marienstraße, D 205/113
Lageplan Marienstraße, D 205/113

Lageplan Marienstraße, D 205/113

Lageplan der U-Station Marienstraße, Zeichnungs­nummer D 205/113 vom 21.02.1992. Maßstab 1:1000. Blattgröße 95 × 30 cm.
U-Bahn-Bauamt der Landeshauptstadt Hannover, Planungsabteilung 69.1, 1992.


Längsschnitt Marienstraße, D 205/203
Längsschnitt Marienstraße, D 205/203

Längsschnitt Marienstraße, D 205/203

Längsschnitt der U-Station Marienstraße, Zeichnungs­nummer D 205/203 vom 21.02.1992. Maßstab 1:1000. Blattgröße 132 × 42 cm.
U-Bahn-Bauamt der Landeshauptstadt Hannover, Planungsabteilung 69.1, 1992.


Lageplan Königstraße, D 206/129
Lageplan Königstraße, D 206/129

Lageplan Königstraße, D 206/129

Lageplan der U-Station Königstraße, Zeichnungs­nummer D 206/129 vom 19.02.1992. Maßstab 1:1000. Blattgröße 79,5 × 30 cm.
U-Bahn-Bauamt der Landeshauptstadt Hannover, Planungsabteilung 69.1, 1992.


Längsschnitt Königstraße, D 206/215
Längsschnitt Königstraße, D 206/215

Längsschnitt Königstraße, D 206/215

Längsschnitt der U-Station Königstraße, Zeichnungs­nummer D 206/215 vom 19.02.1992. Maßstab 1:1000. Blattgröße 132 × 42 cm.
U-Bahn-Bauamt der Landeshauptstadt Hannover, Planungsabteilung 69.1, 1992.


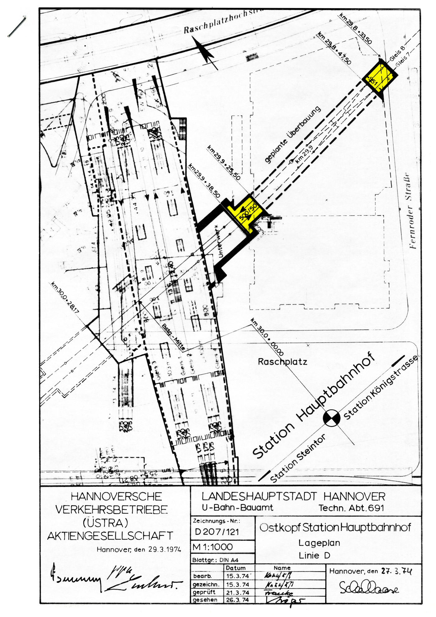
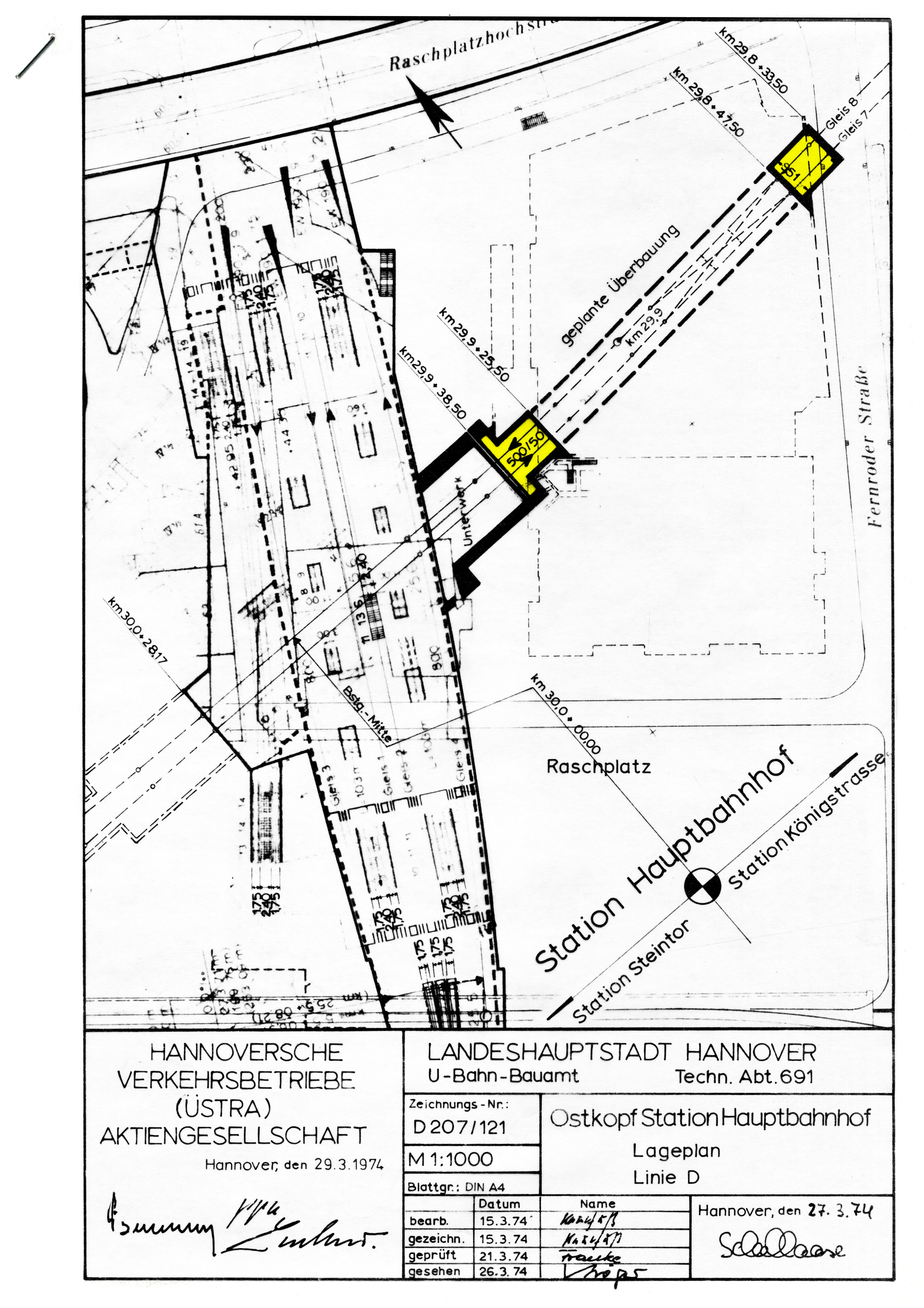
Lageplan Ostkopf Station Hauptbahnhof, D 207/121
Lageplan Ostkopf Station Hauptbahnhof, D 207/121

Lageplan Ostkopf Station Hauptbahnhof, D 207/121

Lageplan der Tunnel-Teilstücke unter dem Gebäude Raschplatz 6 (ehemals Kaufhaus Hertie, heute Cinemaxx), Zeichnungs­nummer D 207/121 vom 27.03.1974. Maßstab 1:1000. Blattgröße 29,7 × 21 cm.
U-Bahn-Bauamt der Landeshauptstadt Hannover, Techn. Abteilung 691, 1974.


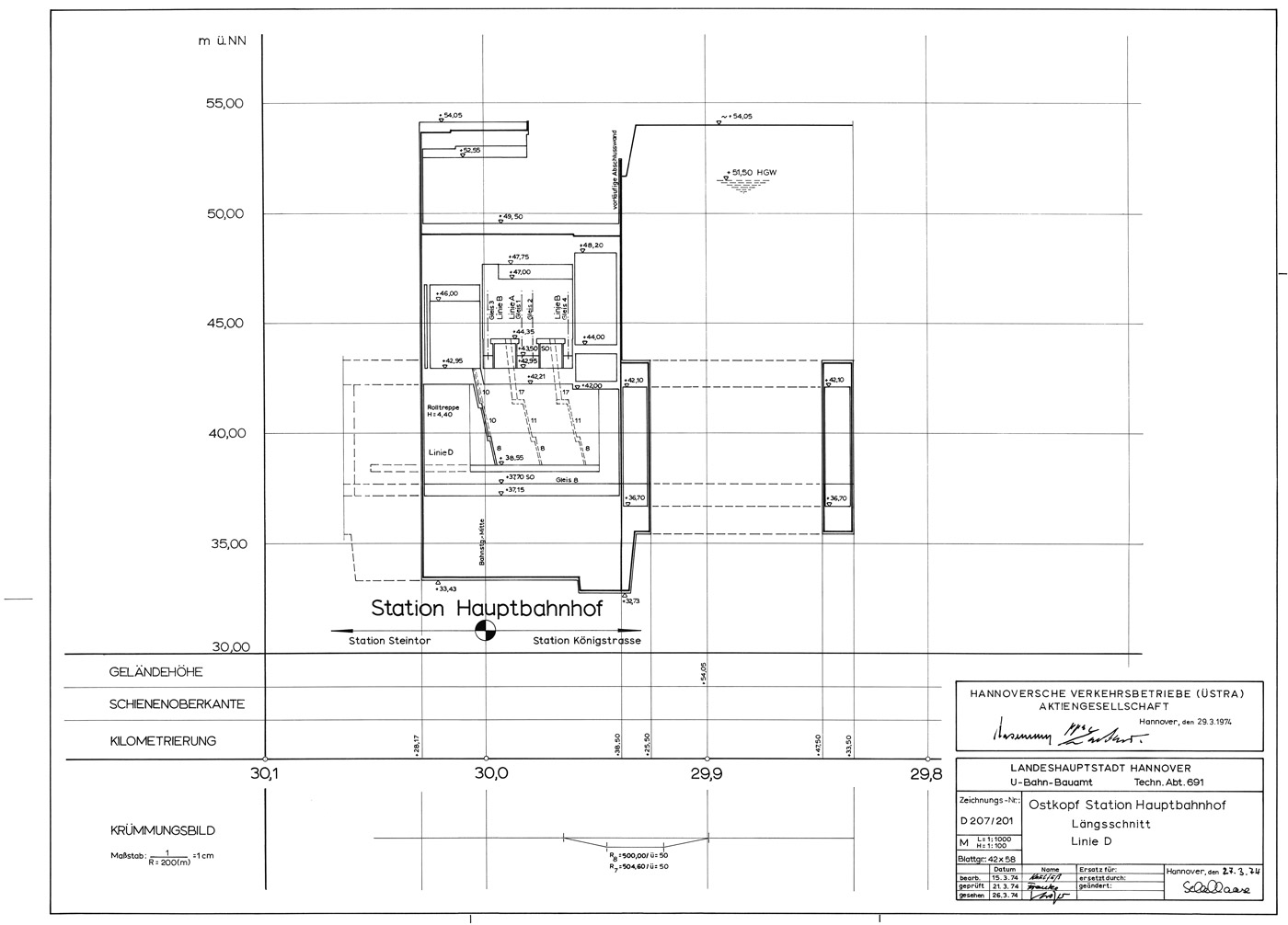
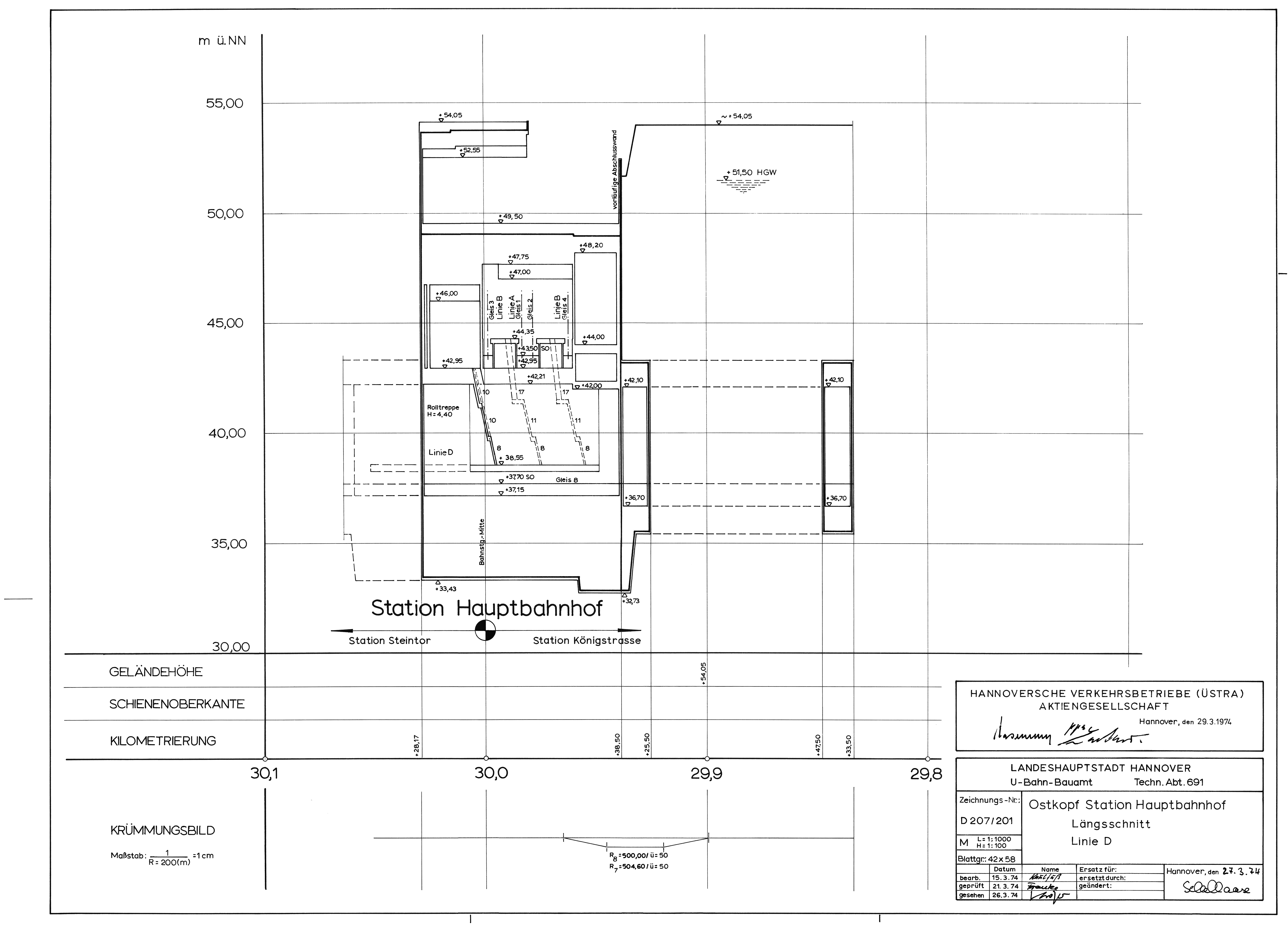
Längsschnitt Ostkopf Hauptbahnhof, D 207/201
Längsschnitt Ostkopf Hauptbahnhof, D 207/201

Längsschnitt Ostkopf Hauptbahnhof, D 207/201

Längsschnitt der U-Station Hauptbahnhof mit Tunnel-Teilstücken unter dem Gebäude Raschplatz 6 (ehemals Kaufhaus Hertie, heute Cinemaxx), Zeichnungs­nummer D 207/206 vom 27.03.1974. Maßstab 1:1000. Blattgröße 58 × 42 cm.
U-Bahn-Bauamt der Landeshauptstadt Hannover, Planungsabteilung 69.1, 1974.


Lageplan Hauptbahnhof (komplett, –2-Ebene), D 207/134
Lageplan Hauptbahnhof (komplett, –2-Ebene), D 207/134

Lageplan Hauptbahnhof (komplett, –2-Ebene), D 207/134

Lageplan der U-Station Hauptbahnhof in der Bahnsteigebene –2 (A/B) mit unterlagerter D-Linie –3, Zeichnungs­nummer D 207/134 vom 21.02.1992. Maßstab 1:1000. Blattgröße 58 × 30 cm.
U-Bahn-Bauamt der Landeshauptstadt Hannover, Planungsabteilung 69.1, 1992.


Lageplan Hauptbahnhof Passerelle, D 207/135a
Lageplan Hauptbahnhof Passerelle, D 207/135a

Lageplan Hauptbahnhof Passerelle, D 207/135a

Lageplan der U-Station Hauptbahnhof in der Passerellenebene –1, Zeichnungs­nummer D 207/135a vom 15.04.1992. Maßstab 1:1000. Blattgröße 42 × 29,7 cm.
U-Bahn-Bauamt der Landeshauptstadt Hannover, Planungsabteilung 69.1, 1992.


Lageplan Hauptbahnhof (D, –3-Ebene), D 207/136
Lageplan Hauptbahnhof (D, –3-Ebene), D 207/136

Lageplan Hauptbahnhof (D, –3-Ebene), D 207/136

Lageplan der U-Station Hauptbahnhof in der Bahnsteigebene –3 (D), Zeichnungs­nummer D 207/136 vom 21.02.1992. Maßstab 1:1000. Blattgröße 58 × 30 cm.
U-Bahn-Bauamt der Landeshauptstadt Hannover, Planungsabteilung 69.1, 1992.


Längsschnitt Hauptbahnhof, D 207/206
Längsschnitt Hauptbahnhof, D 207/206

Längsschnitt Hauptbahnhof, D 207/206

Längsschnitt der U-Station Hauptbahnhof, Zeichnungs­nummer D 207/206 vom 21.02.1992. Maßstab 1:1000. Blattgröße 95 × 42 cm.
U-Bahn-Bauamt der Landeshauptstadt Hannover, Planungsabteilung 69.1, 1992.


Lageplan Steintor und Hbf.-Unterfahrung, D 207a/107
Lageplan Steintor und Hbf.-Unterfahrung, D 207a/107

Lageplan Steintor und Hbf.-Unterfahrung, D 207a/107

Lageplan der U-Station Steintor und der Tunnel-Unterfahrung Hbf., Zeichnungs­nummer D 207a/107 vom 19.02.1992. Maßstab 1:1000. Blattgröße 95 × 30 cm.
U-Bahn-Bauamt der Landeshauptstadt Hannover, Planungsabteilung 69.1, 1992.


Längsschnitt Steintor und Hbf.-Unterfahrung, D 207a/203
Längsschnitt Steintor und Hbf.-Unterfahrung, D 207a/203

Längsschnitt Steintor und Hbf.-Unterfahrung, D 207a/203

Längsschnitt der U-Station Steintor und der Tunnel-Unterfahrung Hbf., Zeichnungs­nummer D 207a/203 vom 19.02.1992. Maßstab 1:1000. Blattgröße 132 × 42 cm.
U-Bahn-Bauamt der Landeshauptstadt Hannover, Planungsabteilung 69.1, 1992.


Lageplan Goetheplatz und Rampe Goethestr., D 208/124
Lageplan Goetheplatz und Rampe Goethestr., D 208/124

Lageplan Goetheplatz und Rampe Goethestr., D 208/124

Lageplan der Station Goetheplatz und Rampe Goethestraße, Zeichnungs­nummer D 208/124 vom 12.02.1992. Maßstab 1:1000. Blattgröße 95 × 30 cm.
U-Bahn-Bauamt der Landeshauptstadt Hannover, Planungsabteilung 69.1, 1992.


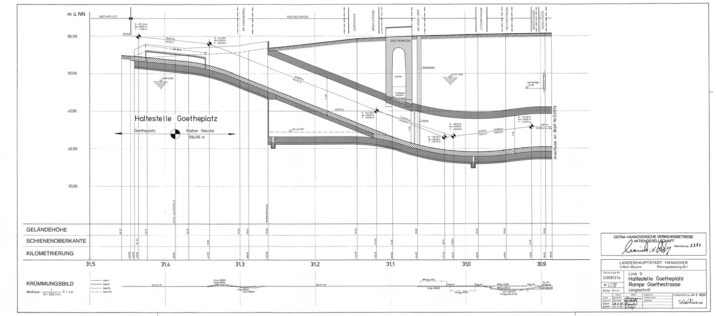
Längsschnitt Goetheplatz und Rampe Goethestr., D 208/214
Längsschnitt Goetheplatz und Rampe Goethestr., D 208/214

Längsschnitt Goetheplatz und Rampe Goethestr., D 208/214

Längsschnitt der Station Goetheplatz und Rampe Goethestraße, Zeichnungs­nummer D 208/214 vom 12.02.1992. Maßstab 1:1000. Blattgröße 95 × 42 cm.
U-Bahn-Bauamt der Landeshauptstadt Hannover, Planungsabteilung 69.1, 1992.


Legende Lagepläne und Längsschnitte
Legende Lagepläne und Längsschnitte

Legende Lagepläne und Längsschnitte

Zeichen- und Farberklärung zu den Lageplänen und Längsschnitten.

Legende Lagepläne und Längsschnitte


Geplantes Stadtbahnnetz Hannover (Planungsstand 1992)
Geplantes Stadtbahnnetz Hannover (Planungsstand 1992)

Geplantes Stadtbahnnetz Hannover (Planungsstand 1992)

Geplantes Stadtbahnnetz Hannover (Planungsstand 1992). Diese Karte erschien auf Grundlage der Stadtkarte 1:10.000 durch die Jahre in mehreren Versionen, jeweils nach Planungsständen und Varianten des Stadtbahnnetzes Hannover. Diese Karte stellt die bislang letzte Variante dar mit dem D-Tunnel in seinen Ausbaustufen 1 bis 3 vom Goetheplatz bis zur Lindemannallee (Variante 6.2 in den Bewertungen und Vorlagen). Maßstab 1:10.000. Blattgröße 91,5 × 74,5 cm.
U-Bahn-Bauamt der Landeshauptstadt Hannover, 1992.


Erläuterungs­bericht zur Plan­fest­stellung für die Stadtbahnlinie D
Erläuterungs­bericht zur Plan­fest­stellung für die Stadtbahnlinie D

Erläuterungs­bericht zur Plan­fest­stellung für die Stadtbahnlinie D

Vorentwurf (Fotokopien und Lichtpausen) des Erläuterungs­berichts zur Plan­fest­stellung für die Stadtbahnlinie D vom 29.10.1992. Dies ist der fast voll­ständige Erläuterungs­bericht zum geplanten D-Tunnel in der 1. und 2. Baustufe vom Goethe­platz über Haupt­bahnhof bis zur Marien­straße. Die Unterlagen waren als Vorentwurf Bestandteil des Plan­feststellungs­verfahrens. Hinweis: Kapitel 8 (Grund­stücks­eingriffe und Eigen­tümer­verzeichnis) wurde aus Daten­schutz­gründen nicht verarbeitet, ansonsten ist der Bericht vollständig und in seiner Reihenfolge abgebildet.
DIN A4-Fotokopien sowie diverse großformatige Lagepläne und Längsschnitte. U-Bahn-Bauamt der Landeshauptstadt Hannover, 1992.

Erläuterungs­bericht zur Plan­fest­stellung für die Stadtbahnlinie D